Gebaut
113m2Grundstück
127m2Schlafzimmer
3Das Badezimmer
3Schwimmbad
JaModerne Reihenhäuser mit privatem Pool in Meeresnähe in Santiago de la Ribera
Das Projekt befindet sich in der Gegend von San Blas in Santiago de la Ribera, Murcia, einer der attraktivsten Gegenden des Mar Menor.
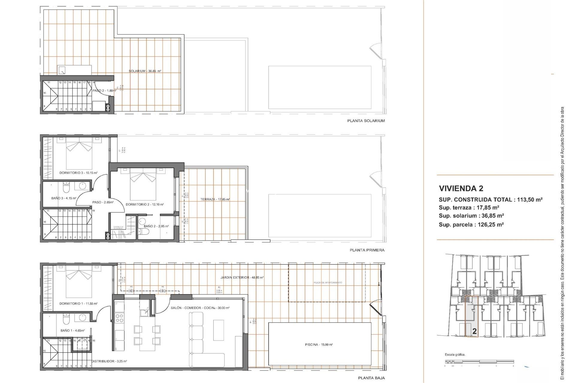
Diese Wohnanlage umfasst 12 Villen mit 3 Schlafzimmern und 2/3 Bädern, einschließlich privatem Pool, Terrasse und Solarium mit Sommerküche in ausgewählten Häusern.
Die Villen verfügen über elegante und funktionale Innenräume, voll ausgestattete Küchen mit allen Elektrogeräten und sind außerdem mit einer Vorinstallation für eine Klimaanlage ausgestattet.
Diese Wohnanlage bietet eine einzigartige Gelegenheit, Design, Komfort und Stil nur wenige Minuten vom Meer entfernt zu genießen.
Exklusives Neubauprojekt nur 1 km vom Strand entfernt
Entdecken Sie dieses limitierte Angebot an Reihenhäusern in Santiago de la Ribera, einem charmanten Küstenort an der Küste Murcias, der für seinen entspannten Lebensstil, seine sauberen Strände und sein ganzjährig ausgezeichnetes Klima bekannt ist. Diese neuen Häuser liegen nur 1 km von der Küste des Mar Menor entfernt und bieten die perfekte Kombination aus Privatsphäre, Komfort und Nähe zu allen wichtigen Dienstleistungen und Freizeitmöglichkeiten.
Zeitgemäßes Design mit funktionaler Aufteilung
Jede Villa ist sorgfältig auf zwei Etagen verteilt und einige Einheiten verfügen über eine Dachterrasse, die viel Platz für modernes Wohnen bietet. Die Immobilien verfügen über:
3 geräumige Schlafzimmer, darunter eines im Erdgeschoss
2 oder 3 Badezimmer.
Privater Garten und Swimmingpool.
Terrasse im ersten Stock und einige Einheiten mit Dachterrasse, ideal zum Sonnenbaden oder zum Empfang von Gästen.
Privater Parkplatz auf dem Grundstück.
Darüber hinaus verfügen zwei der Häuser über eine Photovoltaikanlage zur Energieeinsparung.
Hochwertige Ausstattungen und Leistungen
Die mit Liebe zum Detail und nach modernen Standards gebauten Häuser verfügen über:
Panzertür
Motorisierte Aluminiumrollläden
Einbauküche mit Elektrogeräten
Badezimmermöbel mit Spiegel und Beleuchtung
Maßgefertigte Duschwanne aus Porzellan mit installierten Duschwänden
Vorinstallation für Klimaanlage mit Kanälen
Diese Häuser sind so konzipiert, dass sie das ganze Jahr über genutzt werden können, sei es als Hauptwohnsitz, Zweitwohnsitz oder als Investition für die Ferienvermietung.
Privilegierte Lage an der Costa Cálida
Santiago de la Ribera bietet einen mediterranen und dynamischen Lebensstil mit allem in unmittelbarer Nähe:
Strand (Mar Menor) – 1 km
Einkaufszentrum La Ribera – 2 km
Roda Golf – 5 km
Flughafen San Javier – 6 km
Yachthafen von Lo Pagán – 4 km
Einkaufszentrum Dos Mares – 3 km
Hervorragende Verkehrsanbindung nach Murcia (40 km) und Cartagena (30 km)
Mit seiner reichen lokalen Kultur, den Wochenmärkten, den Strandpromenaden und den Möglichkeiten für Wassersport ist Santiago de la Ribera ein idealer Ort, um das Beste der Costa Cálida zu genießen.
Verwirklichen Sie Ihren Traum vom Leben an der Küste
Verpassen Sie nicht diese einmalige Gelegenheit, eine elegante, neu gebaute Villa in einer der begehrtesten Gegenden der Küste Murcias zu erwerben.
Kontaktieren Sie uns jetzt für weitere Informationen oder um einen Besichtigungstermin zu vereinbaren.
Die hier bereitgestellten Informationen sind vorbehaltlich von Irrtümern und stellen keinen Vertragsbestandteil dar. Das Angebot kann ohne Vorankündigung geändert oder zurückgezogen werden. Die Preise beinhalten keine Einkaufskosten.
*Maximal 70 % des Kauf-/Schätzwerts können über eine Hypothek finanziert werden. Die restlichen 30 % des Kaufwertes zuzüglich Steuern und sonstiger Nebenkosten können nicht finanziert werden.