Gebaut
284m2Grundstück
557m2Schlafzimmer
3Das Badezimmer
3Schwimmbad
JaNeubauvilla in Rojales – Modernes Design und erstklassige Lage
Entdecken Sie diese atemberaubende Neubauvilla in Ciudad Quesada, Rojales, die mit einer perfekten Balance aus Stil, Komfort und Funktionalität gestaltet wurde. Umgeben von Natur und in der Nähe aller wichtigen Dienstleistungen ist dieses Haus die ideale Wahl für alle, die ein hochwertiges Leben im Herzen der Costa Blanca suchen.
Großzügiger Grundriss mit hochwertiger Ausstattung
Diese Villa wurde sorgfältig entworfen, um viel Tageslicht und offene Räume zu schaffen. Sie umfasst:
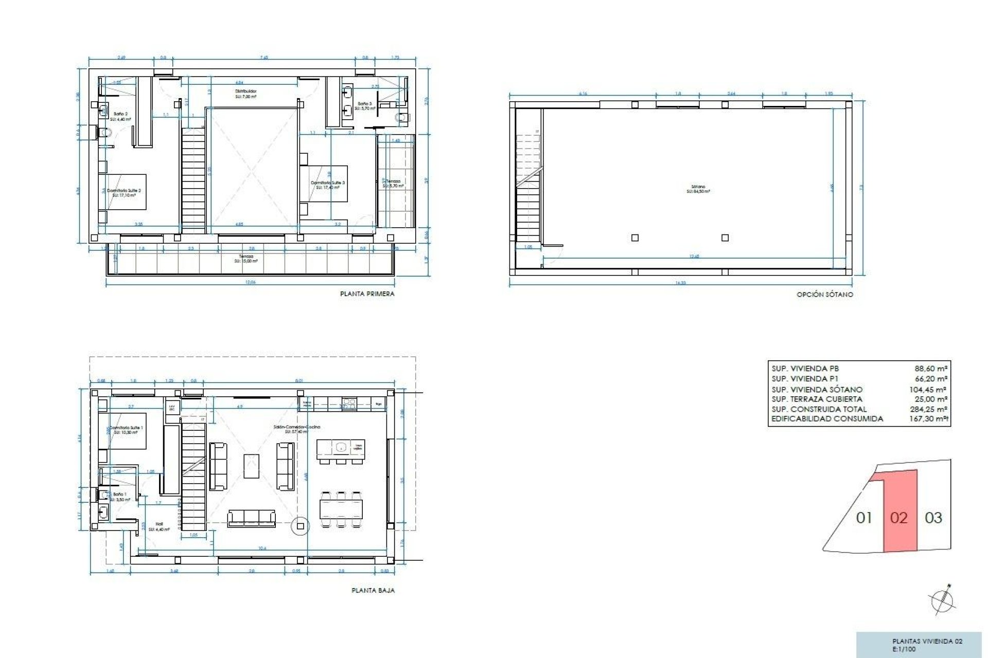
Ein großes Untergeschoss mit ausgezeichneter Belüftung und Tageslicht, ideal für verschiedene Nutzungen.
Erdgeschoss mit einem Wohnzimmer mit doppelter Deckenhöhe, offener Küche mit Kochinsel, einem Schlafzimmer und einem Badezimmer.
Obergeschoss mit zwei Schlafzimmern mit eigenem Bad, jedes mit Zugang zu privaten Terrassen.
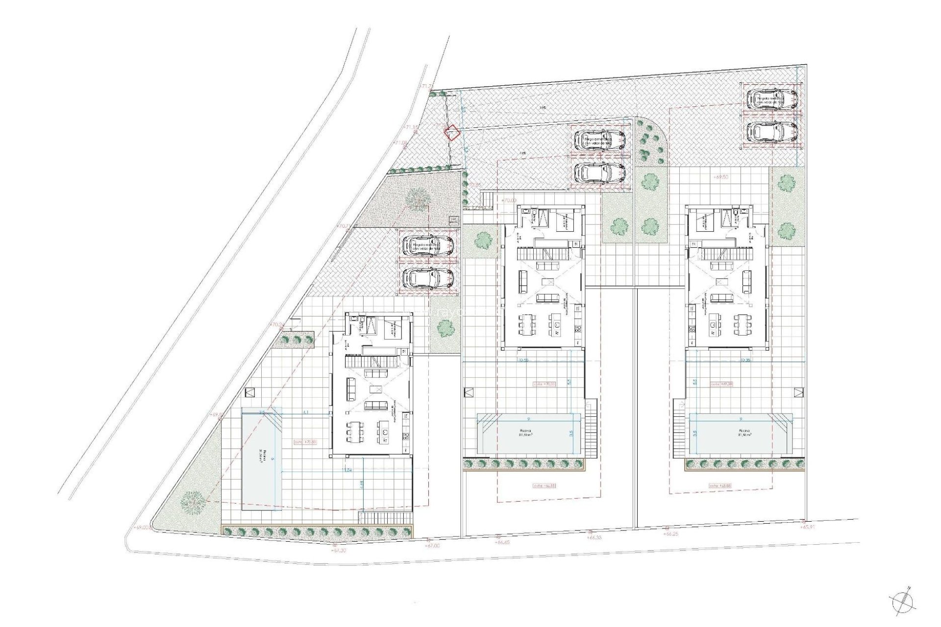
Die Villa bietet außerdem einen privaten 9 x 3,5 m großen Swimmingpool, einen angelegten Garten und mehrere Terrassen zum Entspannen im Freien.
Hochwertige Ausstattung und moderner Komfort
Diese Immobilie wurde mit hochwertigen Materialien gebaut und ist ausgestattet mit:
Komplett möblierten Badezimmern mit Spiegeln
Klimaanlage
Fußbodenheizung in den Badezimmern
Aerothermischem Warmwassersystem
Parkplatz für mehrere Fahrzeuge
Erstklassige Lage in Rojales
Diese Villa liegt in der charmanten Stadt Rojales und in der Nähe aller wichtigen Dienstleistungen wie Supermärkte, Apotheken, Banken, Restaurants und Naturparks. Nur 10 Minuten vom La Marquesa Golf entfernt, einem der renommiertesten Golfplätze an der Costa Blanca, können die Bewohner ein erstklassiges Golferlebnis inmitten von Tradition und Qualität genießen.
Hervorragende Anbindung und Sehenswürdigkeiten in der Nähe
Rojales ist strategisch günstig gelegen und bietet eine hervorragende Verkehrsanbindung:
La Marquesa Golf – 3 km
Strände von Guardamar del Segura – 8 km
Torrevieja – 12 km
Flughafen Alicante – 40 km
Flughafen Murcia – 55 km
Darüber hinaus gewährleisten die Autobahnen N-332 und AP-7 eine schnelle Anbindung an nahegelegene Städte, Einkaufszentren, Yachthäfen und kulturelle Sehenswürdigkeiten.
Machen Sie Rojales zu Ihrem neuen Zuhause
Ob Sie einen dauerhaften Wohnsitz, einen Rückzugsort für den Urlaub oder eine sichere Investition suchen, diese neu gebaute Villa in Ciudad Quesada bietet Ihnen alles, was Sie für einen mediterranen Lebensstil benötigen. Kontaktieren Sie uns noch heute für weitere Informationen und um einen privaten Besichtigungstermin zu vereinbaren.
Die hier bereitgestellten Informationen sind vorbehaltlich von Irrtümern und stellen keinen Vertragsbestandteil dar. Das Angebot kann ohne Vorankündigung geändert oder zurückgezogen werden. Die Preise beinhalten keine Einkaufskosten.
*Maximal 70 % des Kauf-/Schätzwerts können über eine Hypothek finanziert werden. Die restlichen 30 % des Kaufwertes zuzüglich Steuern und sonstiger Nebenkosten können nicht finanziert werden.