Gebaut
242m2Grundstück
885m2Schlafzimmer
3Das Badezimmer
2Schwimmbad
JaModerne, neu gebaute Luxusvilla in Meeresnähe in Moraira
Zeitgenössischer Stil und minimalistisches Design
Diese moderne, neu gebaute Villa in Moraira besticht durch ihre minimalistische Architektur, elegante Linienführung und eine harmonische Kombination von Materialien wie Naturstein, Holz und Glas. Nur 300 Meter vom Meer entfernt, bietet sie ein helles und elegantes Ambiente mit großen, raumhohen Fenstern, die den Innenbereich perfekt mit den Außenbereichen verbinden und den ganzen Tag über viel Tageslicht hereinlassen.
Offene Räume und mediterranes Leben im Freien
Das Haus erstreckt sich über zwei Etagen und bietet offene Räume, die für Komfort und mediterranes Lebensgefühl konzipiert sind. Das offene Wohn- und Esszimmer öffnet sich direkt zu den Terrassen und dem privaten Pool und schafft so einen perfekten Raum zum Entspannen, Sonnenbaden oder für Abende im Freien. Der Außenbereich bietet einen eleganten überdachten Wohnbereich, eine Sonnenterrasse und einen gepflegten Garten, der Privatsphäre und Ruhe garantiert.
Funktionale Aufteilung und hochwertige Ausstattung
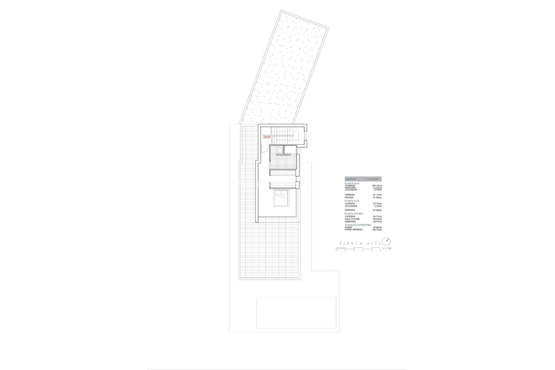
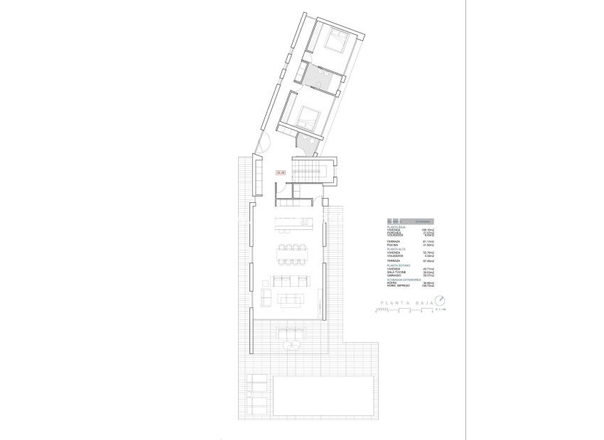
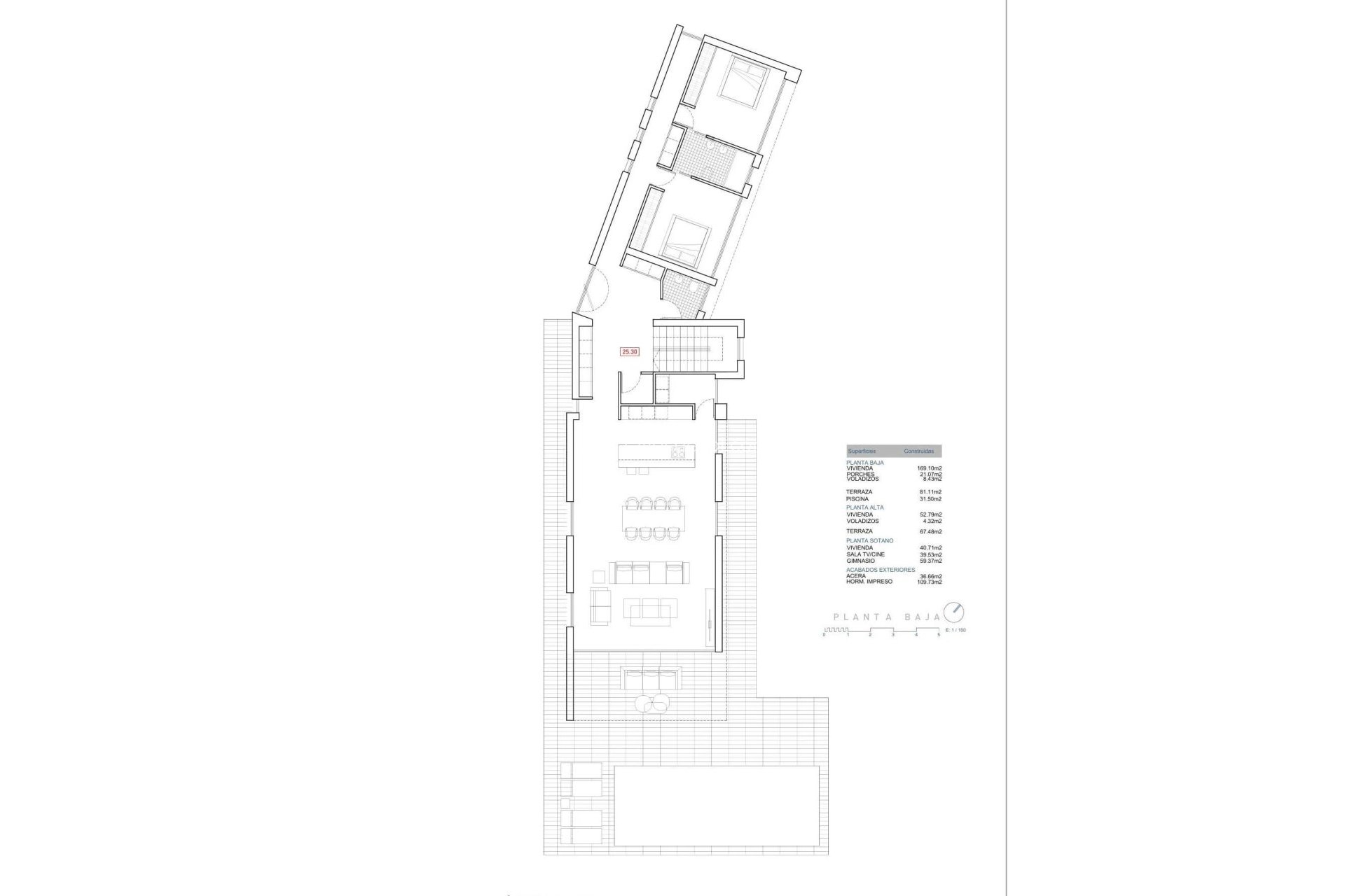
Diese Villa verfügt über 3 Schlafzimmer, 2 Badezimmer und 1 Gästetoilette. Im Erdgeschoss befinden sich zwei Schlafzimmer, ein Badezimmer, eine Toilette und die großzügigen Gemeinschaftsbereiche, darunter eine voll ausgestattete offene Küche, eine Waschküche und eine Speisekammer. Im Obergeschoss befindet sich die Master-Suite, ein privater Bereich mit eigenem Bad, Ankleidezimmer und einer 67 m² großen Terrasse, von der aus man die freie Aussicht und den Charme der natürlichen Umgebung genießen kann. Auf Wunsch kann ein Keller hinzugefügt werden, der sich ideal für einen Fitnessraum, einen Kinoraum oder zusätzlichen Stauraum eignet.
Privilegierte Lage in Moraira
In einer ruhigen Wohngegend in der Nähe des Strandes Playa La Galera und mit Supermarkt und Dienstleistungen in unmittelbarer Nähe gelegen, bietet diese Immobilie eine hervorragende Anbindung an die wichtigsten Sehenswürdigkeiten der Costa Blanca Nord. Moraira zeichnet sich durch seinen mediterranen Charme, Strände mit kristallklarem Wasser, einen Yachthafen, Wanderwege und Restaurants mit gehobener Küche aus.
Sehenswürdigkeiten in der Nähe:
Flughafen Alicante 92 km
Flughafen Valencia 125 km
Golfclub Ifach 4 km
Yachthafen von Moraira 2 km
Eine einmalige Gelegenheit an der Costa Blanca
Diese Villa eignet sich perfekt als Dauerwohnsitz, Urlaubsdomizil oder Premium-Investition in einer der exklusivsten Gegenden des Mittelmeerraums. Kontaktieren Sie uns noch heute für weitere Informationen und vereinbaren Sie einen Besichtigungstermin.
Die hier bereitgestellten Informationen sind vorbehaltlich von Irrtümern und stellen keinen Vertragsbestandteil dar. Das Angebot kann ohne Vorankündigung geändert oder zurückgezogen werden. Die Preise beinhalten keine Einkaufskosten.
*Maximal 70 % des Kauf-/Schätzwerts können über eine Hypothek finanziert werden. Die restlichen 30 % des Kaufwertes zuzüglich Steuern und sonstiger Nebenkosten können nicht finanziert werden.