Gebaut
108m2Schlafzimmer
3Das Badezimmer
2Schwimmbad
JaModerne mediterrane Apartments in Ciudad Quesada, Costa Blanca
Exklusives Wohnen
Entdecken Sie eine exklusive private Wohnanlage, die maximalen Komfort, Qualität und Lifestyle an einem der begehrtesten Standorte an der Costa Blanca bietet. Diese moderne Anlage befindet sich in Ciudad Quesada, nur wenige Minuten vom internationalen Flughafen Alicante entfernt, und verbindet den zeitlosen Charme mediterraner Architektur mit einem frischen, funktionalen Design, das ideal für modernes Wohnen ist.
Elegante Apartments mit privaten Außenbereichen
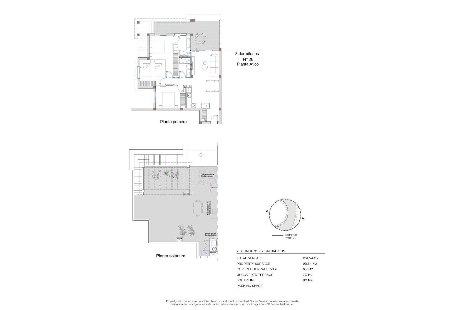
Der Komplex bietet zwei Arten von Wohnungen, die unterschiedlichen Lebensstilen gerecht werden. Wählen Sie zwischen Apartments im Erdgeschoss mit einem großzügigen privaten Garten, der sich perfekt zum Entspannen im Freien eignet, oder Apartments im ersten Stock mit einem großen privaten Solarium, ideal, um das ganze Jahr über die Sonne und die ruhige Aussicht zu genießen.
Jedes Apartment verfügt über 2-3 Schlafzimmer und 2 Badezimmer und bietet ein helles und komfortables Interieur. Darüber hinaus verfügt jede Wohnung über einen privaten Parkplatz innerhalb des Komplexes und einen Abstellraum für zusätzlichen Komfort.
Gemeinschaftsräume für Entspannung und Wohlbefinden
Der Wohnkomplex wurde für Genuss und Entspannung konzipiert und bietet wunderschön angelegte Gemeinschaftsgärten und einen großen Swimmingpool, der eine ruhige und exklusive Atmosphäre schafft. Ob Sie sich unter der Sonne entspannen, ein erfrischendes Bad nehmen oder einfach nur die natürliche Umgebung genießen möchten, diese Anlage bietet Ihnen alles, was Sie für ein komfortables Leben an der Costa Blanca benötigen.
Erstklassige Lage in der Nähe von Stränden und Golfplätzen
Ciudad Quesada ist eine etablierte und lebendige Gemeinde, die für ihre ausgezeichneten Dienstleistungen, Restaurants und Freizeitmöglichkeiten bekannt ist. Der nur wenige Minuten entfernte Golfplatz La Marquesa ist einer der geschichtsträchtigsten Golfplätze an der Costa Blanca. Er verfügt über 18 Löcher und das berühmte Loch 17, das von Sawgrass inspiriert wurde und Golfbegeisterten ein einzigartiges Erlebnis bietet.
Die schönen mit der Blauen Flagge ausgezeichneten Strände von Guardamar del Segura, La Mata und Torrevieja sind nur 15 km von der Wohnanlage entfernt und eignen sich perfekt zum Sonnenbaden oder für Wassersport. Der internationale Flughafen Alicante ist nur 40 km entfernt und somit bequem zu erreichen.
Mediterraner Lebensstil vom Feinsten
Umgeben von Natur, Golfplätzen und dem Meer bietet dieses Wohnprojekt den perfekten Rahmen sowohl für dauerhaftes Wohnen als auch für Urlaubsgenuss. Es ist ein Ort, an dem moderner Komfort auf den Charme der mediterranen Lebensart trifft.
Vereinbaren Sie noch heute einen Besichtigungstermin
Verpassen Sie nicht die Gelegenheit, Ihr neues Zuhause in Ciudad Quesada an der Costa Blanca zu erwerben. Kontaktieren Sie uns noch heute, um weitere Informationen zu erhalten oder eine private Besichtigung dieser außergewöhnlichen Neubauwohnungen zu vereinbaren.
Die hier bereitgestellten Informationen sind vorbehaltlich von Irrtümern und stellen keinen Vertragsbestandteil dar. Das Angebot kann ohne Vorankündigung geändert oder zurückgezogen werden. Die Preise beinhalten keine Einkaufskosten.
*Maximal 70 % des Kauf-/Schätzwerts können über eine Hypothek finanziert werden. Die restlichen 30 % des Kaufwertes zuzüglich Steuern und sonstiger Nebenkosten können nicht finanziert werden.