Gebaut
208m2Grundstück
400m2Schlafzimmer
4Das Badezimmer
3Schwimmbad
JaNeubau-Luxusvilla mit Meerblick in La Alberca Polop
Modernes Design in ruhiger Berglandschaft
Diese außergewöhnliche Neubauvilla befindet sich in La Alberca, einer ruhigen Wohngegend in den Bergen von Polop. Umgeben von Wald und Natur bietet das Anwesen einen Panoramablick auf das Mittelmeer, die Berge und die historische Stadt Polop. Die Villa wurde mit vertikaler architektonischer Eleganz entworfen und verbindet Privatsphäre, Funktionalität und nahtloses Wohnen im Innen- und Außenbereich.
Polop ist ein charmantes Dorf an der Costa Blanca, das für seine traditionelle Atmosphäre und seine natürliche Schönheit bekannt ist. Die Villa liegt in der Nähe aller Dienstleistungen in La Nucia, darunter Geschäfte, Restaurants, Sportzentren und Schulen. Die Strände und lebhaften Küstenstädte wie Benidorm und Altea sind nur 15 Minuten entfernt.
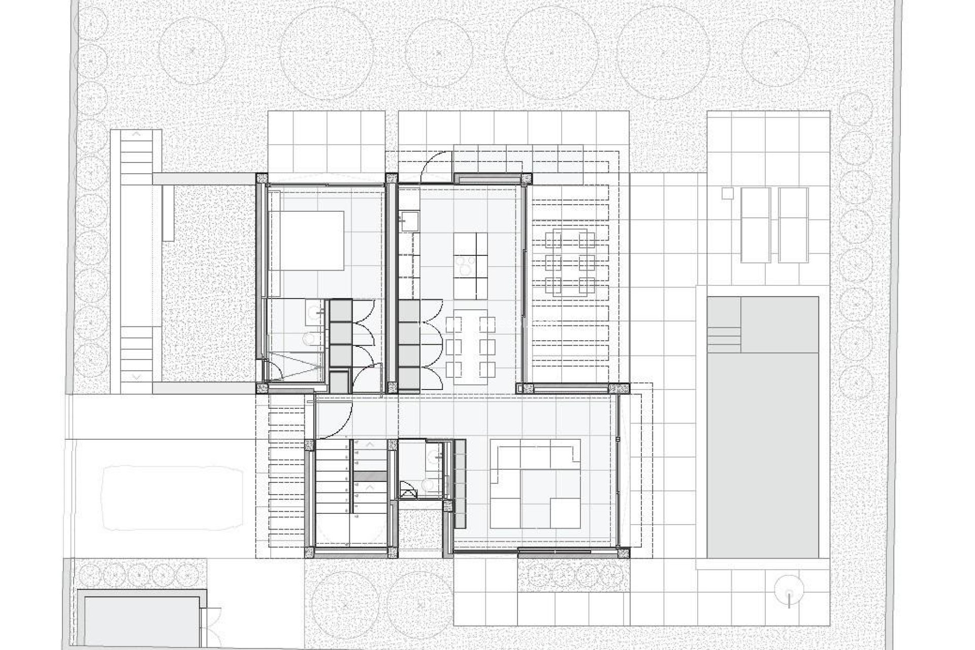
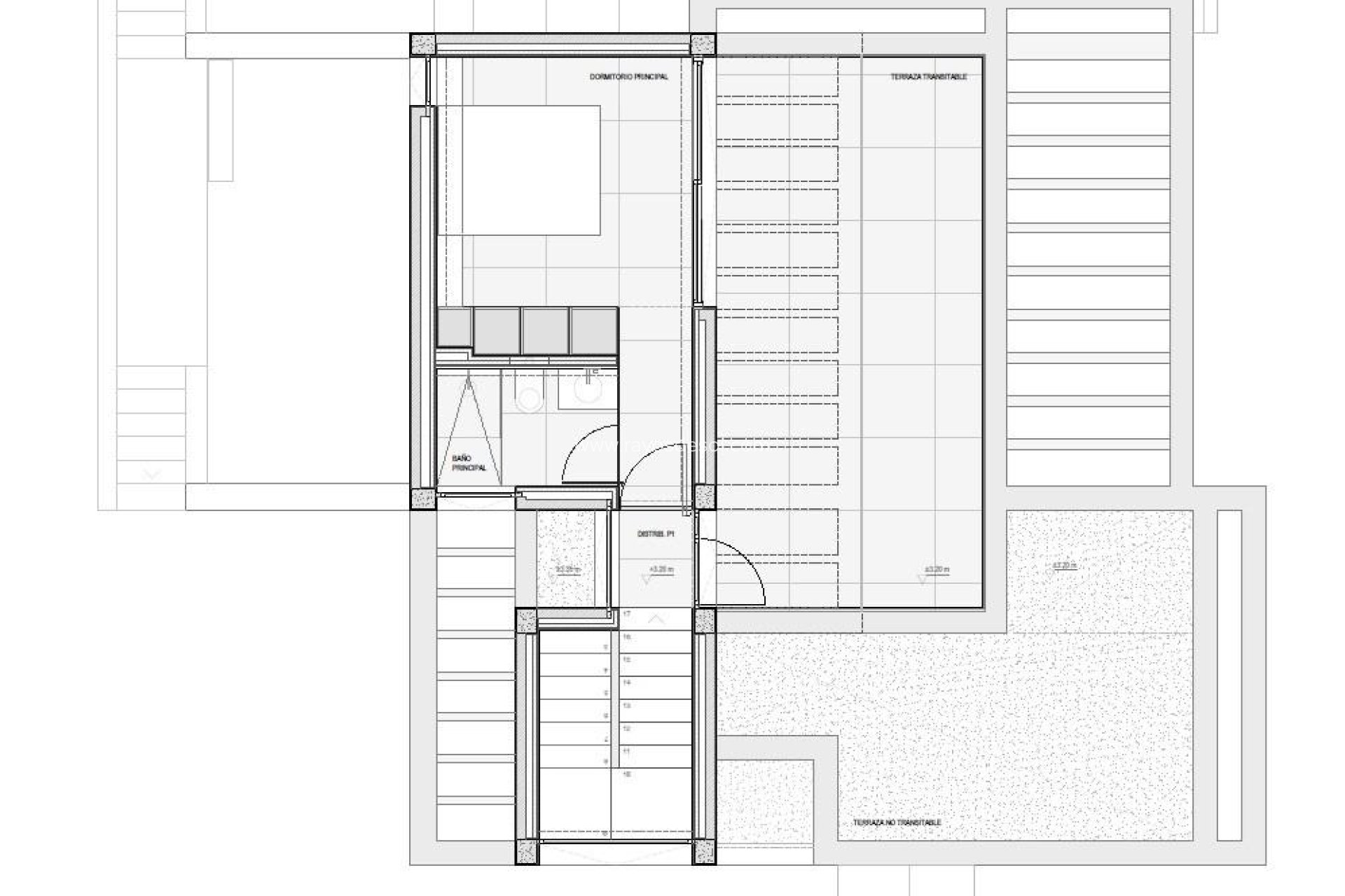
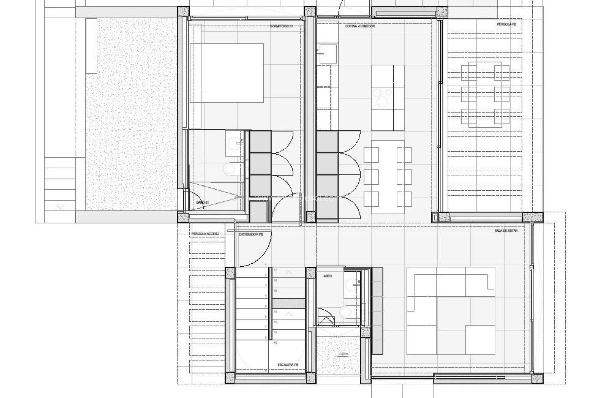
Durchdachte Aufteilung auf drei Ebenen
Das Erdgeschoss empfängt Sie mit einer Eingangshalle mit Einbauschrank und Gästetoilette. Auf dieser Ebene befindet sich ein Schlafzimmer mit eigenem Bad und raumhohen, hochschiebbaren Fenstertüren, die auf eine private Seitenterrasse führen. Der helle, offene Wohn- und Essbereich ist direkt mit einer pergolaüberdachten Terrasse und dem privaten Salzwasserpool verbunden und schafft so einen harmonischen Lebensstil zwischen Innen- und Außenbereich.
Die oberste Etage ist ausschließlich der Master-Suite vorbehalten. Diese private Etage bietet ein Schlafzimmer mit eigenem Bad und Zugang zu einer spektakulären 40 m² großen Terrasse mit atemberaubendem Panoramablick auf das Meer und die Berge, wodurch maximale Privatsphäre und Komfort gewährleistet sind.
Im Untergeschoss befinden sich zwei weitere Schlafzimmer mit großen Fenstern, die auf einen wunderschön gestalteten versunkenen Innenhof blicken, der den Raum mit natürlichem Licht erfüllt. Ein gemeinsames Badezimmer, eine voll ausgestattete Waschküche mit Haier-Geräten und zwei geräumige Technik- und Abstellräume vervollständigen diese Etage.
Hochwertige Ausstattung und Energieeffizienz
Die Villa verfügt über eine hochwertige Ausstattung und fortschrittliche Systeme, wie zum Beispiel:
Zentrale Inselküche mit integrierten BOSCH-Geräten
Naturstein-Arbeitsplatten im Innen- und Außenbereich
Panoramafenster mit sonnengeschütztem, verstärktem Glas
Aerothermisches Klimasystem von Mitsubishi
Vorinstallation für Fußbodenheizung
Energieeffizienzklasse A
Vorinstallation für Smart-Home-System
Privater Parkplatz für zwei Fahrzeuge
Der mediterrane Landschaftsgarten mit automatischer Bewässerung und ein eleganter Innenhof auf der unteren Ebene sorgen für Privatsphäre und Entspannung. Das Dach ist für die Installation von Sonnenkollektoren vorbereitet.
Ausgezeichnete Lage und Entfernungen
Zentrum von Polop 2 km
La Nucia 4 km
Strände von Benidorm 12 km
Altea 10 km
Villaitana Golf 14 km
Flughafen Alicante 65 km
Entdecken Sie Ihren privaten Rückzugsort in Polop
Diese moderne Villa mit Meerblick bietet Design, Privatsphäre und Komfort in einer der attraktivsten Naturlandschaften der Costa Blanca. Kontaktieren Sie uns noch heute, um eine private Besichtigung zu vereinbaren und sich Ihr neues Zuhause in La Alberca Polop zu sichern.
453
Die hier bereitgestellten Informationen sind vorbehaltlich von Irrtümern und stellen keinen Vertragsbestandteil dar. Das Angebot kann ohne Vorankündigung geändert oder zurückgezogen werden. Die Preise beinhalten keine Einkaufskosten.
*Maximal 70 % des Kauf-/Schätzwerts können über eine Hypothek finanziert werden. Die restlichen 30 % des Kaufwertes zuzüglich Steuern und sonstiger Nebenkosten können nicht finanziert werden.