Gebaut
87m2Grundstück
66m2Schlafzimmer
3Das Badezimmer
2Schwimmbad
JaNeubauwohnungen in La Nucía – Modernes Wohnen in der Ciudad del Deporte nahe Benidorm
Erstklassige Lage in La Nucía an der Costa Blanca
Entdecken Sie diese außergewöhnliche neue Wohnanlage in La Nucía, einer der begehrtesten Gegenden an der Costa Blanca. Eingebettet in das innovative Viertel Ciudad del Deporte bietet dieser Standort eine einzigartige Mischung aus moderner Infrastruktur, natürlicher Umgebung und praktischer Alltagstauglichkeit. Nur 7 km von den Stränden von Benidorm und Altea entfernt, ist La Nucía bekannt für seine ruhige Umgebung, hervorragende Sportanlagen und hohe Lebensqualität. Die Gegend bietet zudem internationale Schulen, Einkaufsmöglichkeiten und alle wichtigen Dienstleistungen in unmittelbarer Nähe, was sie ideal sowohl für den dauerhaften Wohnsitz als auch für Urlaubsaufenthalte macht.
Moderne Apartments für das Leben am Mittelmeer
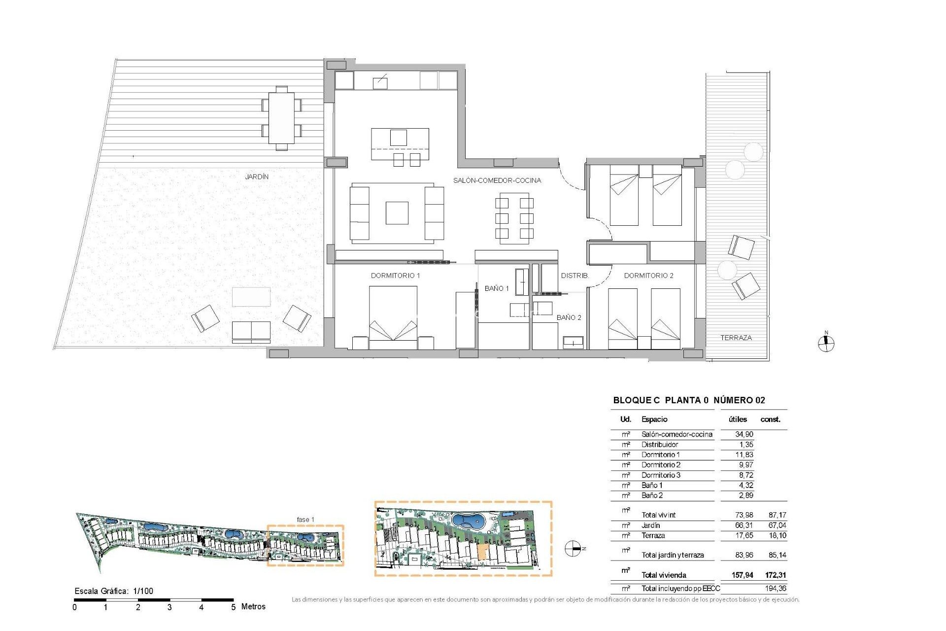
Diese erste Bauphase umfasst 64 stilvolle Apartments mit 2 und 3 Schlafzimmern. Käufer können zwischen Wohnungen im Erdgeschoss mit privaten Gärten, Apartments in den mittleren Etagen mit großzügigen Terrassen oder Penthäusern mit privaten Sonnenterrassen wählen. Die meisten Immobilien verfügen über zwei große Terrassen mit Ausrichtung nach Osten und Südwesten, sodass Sie den ganzen Tag über Sonnenlicht genießen und das mediterrane Klima optimal nutzen können.
Die Innenräume sind offen gestaltet, um das natürliche Licht optimal zu nutzen und eine nahtlose Verbindung zwischen Innen- und Außenbereichen zu schaffen. Voll ausgestattete Küchen mit Bosch-Geräten fügen sich perfekt in den Wohnbereich ein, während die Badezimmer mit Fußbodenheizung, modernen Möbeln, Spiegeln und Duschwänden ausgestattet sind.
Hochwertige Ausstattung und Energieeffizienz
Jedes Haus wird mit hochwertigen Materialien und moderner Technologie gebaut, um Komfort und Nachhaltigkeit zu gewährleisten. Zur Ausstattung gehören doppelt verglaste Fenster mit Wärmedämmung, motorisierte Rollläden, verstärkte Sicherheitstüren und ein aerothermisches System für Warmwasser und Klimatisierung. Jede Wohnung verfügt zudem über einen privaten Parkplatz und einen Abstellraum in der Tiefgarage.
Exklusive Gemeinschaftsbereiche für Lifestyle und Wohlbefinden
Die Wohnanlage bietet herausragende Gemeinschaftseinrichtungen, die für Entspannung, Freizeit und Produktivität konzipiert sind. Die Bewohner können einen großen, von gepflegten Gärten umgebenen Swimmingpool, einen voll ausgestatteten Fitnessraum und einen über 200 m² großen Wellnessbereich mit Whirlpool, Sauna und Türkischem Bad genießen. Zu den weiteren Annehmlichkeiten gehören ein Clubhaus mit Coworking-Bereichen und ein Kinderspielplatz, die ein lebendiges und komfortables Gemeinschaftsleben schaffen.
Hervorragende Anbindung und Sehenswürdigkeiten in der Nähe
Strände von Benidorm 7 km
Altea 8 km
Stadtzentrum von La Nucía 3 km
Flughafen Alicante 60 km
Villaitana Golf 6 km
Hafen von Altea 10 km
Investitionsmöglichkeit und mediterraner Lebensstil
Diese Wohnanlage bietet nicht nur ein modernes Zuhause, sondern auch eine hervorragende Investitionsmöglichkeit mit optionalen Vermietungsmanagement-Dienstleistungen, die darauf ausgelegt sind, die Rendite zu maximieren, wenn die Immobilie nicht genutzt wird. Kontaktieren Sie uns noch heute, um weitere Informationen zu erhalten oder eine Besichtigung zu vereinbaren und sich Ihre neue Immobilie in La Nucía zu sichern.
453
Die hier bereitgestellten Informationen sind vorbehaltlich von Irrtümern und stellen keinen Vertragsbestandteil dar. Das Angebot kann ohne Vorankündigung geändert oder zurückgezogen werden. Die Preise beinhalten keine Einkaufskosten.
*Maximal 70 % des Kauf-/Schätzwerts können über eine Hypothek finanziert werden. Die restlichen 30 % des Kaufwertes zuzüglich Steuern und sonstiger Nebenkosten können nicht finanziert werden.