Construidos
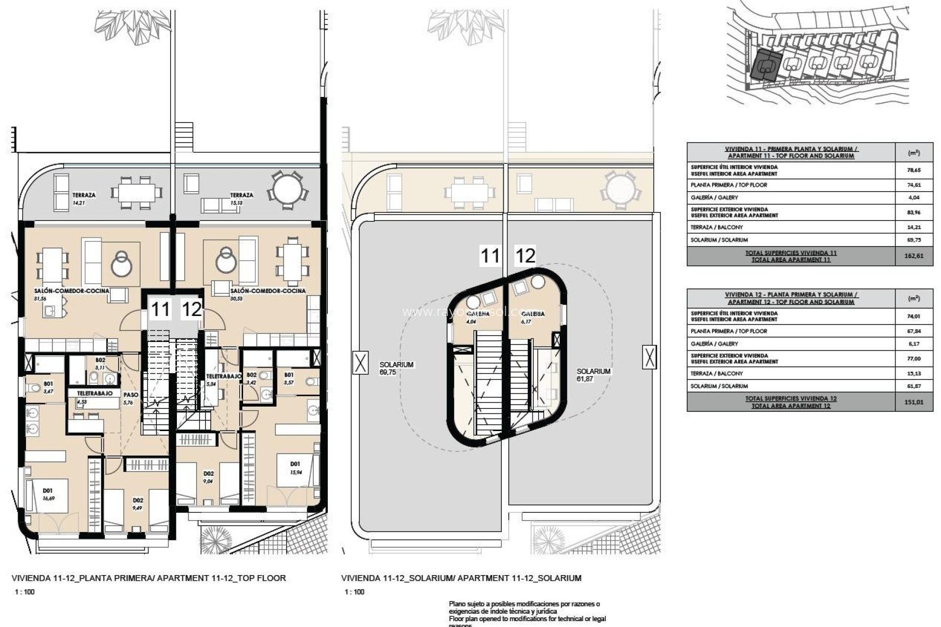
151m2Habitaciones
2Baños
2Piscina
SíBungalows de Obra Nueva con Vistas al Mar en La Mata, Torrevieja Ubicación Privilegiada a 300 Metros de la Playa Este exclusivo residencial de obra nueva se encuentra en La Mata, Torrevieja, una de las zonas más codiciadas de la Costa Blanca. A solo 300 metros de la playa, esta promoción ofrece un entorno natural excepcional con vistas panorámicas al mar y fácil acceso a todos los servicios esenciales. La Mata es una zona vibrante con un encanto especial, rodeada de paseos marítimos, restaurantes, cafeterías y supermercados, lo que la convierte en el destino perfecto tanto para vivir todo el año como para disfrutar de una segunda residencia junto al mar. Diseño Moderno y Eficiencia Energética Este residencial destaca por su elegante arquitectura mediterránea con un toque vanguardista. Diseñado bajo el estándar Passivhaus, garantiza una construcción sostenible que proporciona máximo confort térmico y eficiencia energética, reduciendo el consumo y el impacto ambiental. Las viviendas cuentan con acabados de alta calidad, espacios amplios y abundante luz natural, logrando un equilibrio perfecto entre diseño y funcionalidad. Opciones de Vivienda para Todos los Estilos de Vida Apartamentos en planta baja con gran jardín privado con vistas al mar y espacio suficiente para una piscina privada. Además, incluyen un semisótano con la posibilidad de añadir dormitorios adicionales. Apartamentos en planta alta con amplio balcón, solárium privado y espectaculares vistas al mar, perfectos para disfrutar del sol mediterráneo. Exclusivas Zonas Comunes Este residencial ofrece espacios diseñados para el confort y la relajación: Piscina infinita comunitaria, ideal para refrescarse con vistas panorámicas. Plaza de parking subterráneo incluida en cada vivienda. Proximidad a Puntos de Interés Playa de La Mata – 300 m. Centro de Torrevieja – 6 km. Parque Natural de las Lagunas de La Mata-Torrevieja – 2 km. Campo de Golf La Marquesa – 15 km. Aeropuerto de Alicante – 40 km (aprox. 40 min). Aeropuerto de Murcia – 65 km (aprox. 1 hora). Su Hogar en la Costa Blanca le Espera Si busca un apartamento de lujo con vistas al mar, en una ubicación privilegiada y con todas las comodidades, este residencial es su mejor opción. Contáctenos hoy mismo para más información y concertar una visita.
La información proporcionada aquí está sujeta a errores y no forma parte de ningún contrato. La oferta puede modificarse o retirarse sin previo aviso. Los precios no incluyen los costes de compra.
*El ahorro propio no puede ser inferior al 30%.