Construidos
222m2Parcela
1.149m2Habitaciones
3Baños
4Piscina
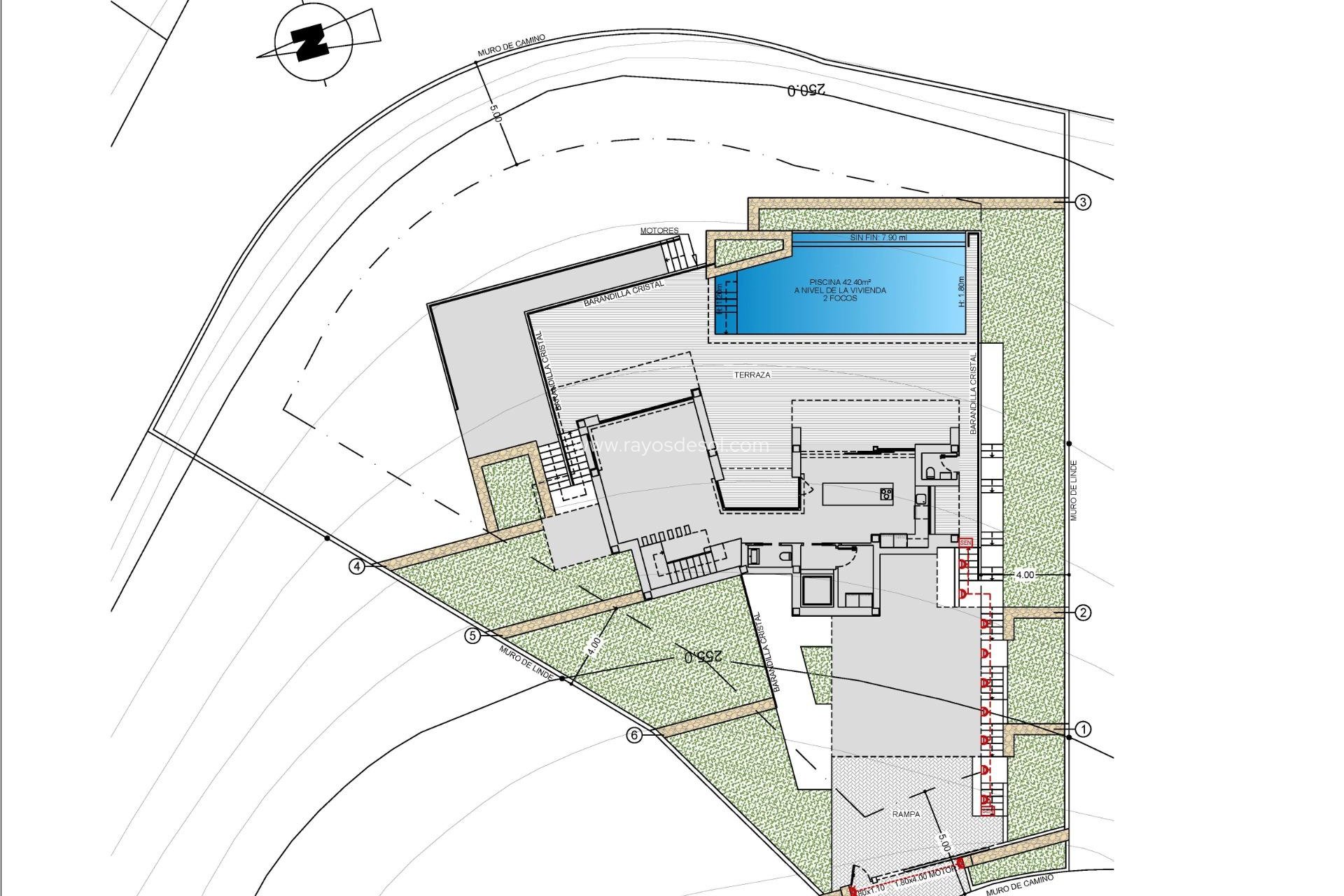
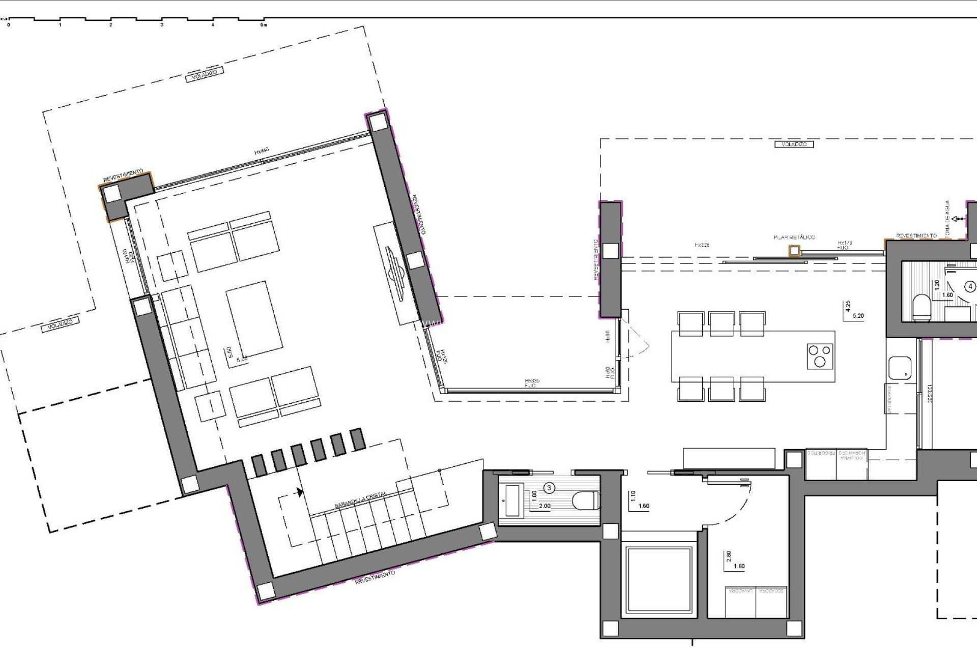
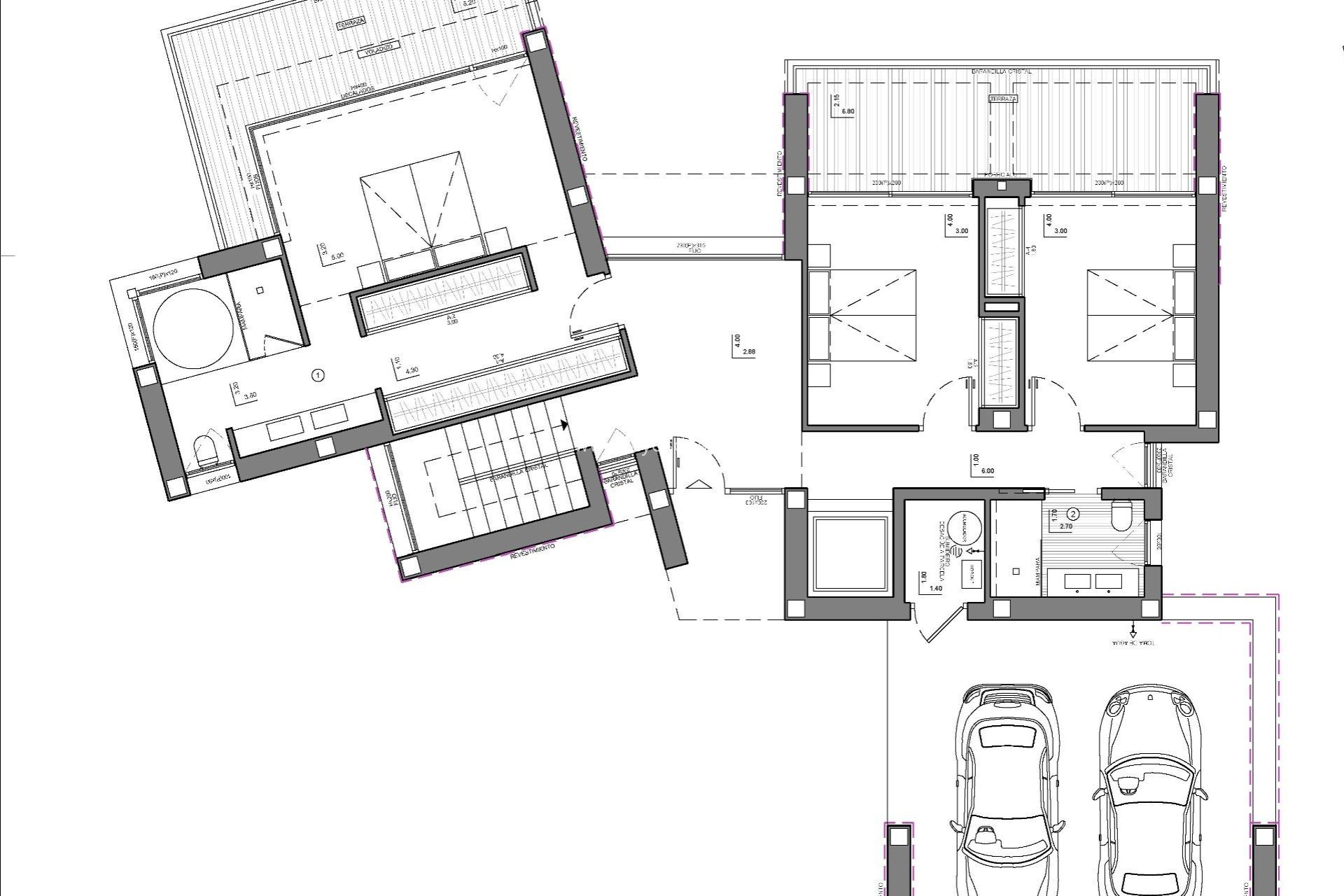
SíVILLA DE LUJO DE NUEVA CONSTRUCCIÓN EN CUMBRE DEL SOL En el corazón del Residencial Cumbre del Sol, se encuentra esta villa de lujo con piscina privada. El diseño de la villa de nueva construcción combina de forma elegante y funcional la arquitectura moderna y mediterránea. En la fachada, caracterizada por grandes formas geométricas a base de líneas diagonales, predomina el color blanco y el uso de la piedra natural le permite mimetizarse con su entorno. Su enorme jardín de estilo mediterráneo, coronado por una piscina de efecto infinito que se funde con el azul del mar, sumado al suave clima de la Costa Blanca Norte, invita a disfrutar de largas jornadas al aire libre durante casi todo el año. Su ubicación le permitirá disfrutar de un entorno tranquilo y confortable. La villa se distribuye en 3 plantas. Se accede a la villa por la planta superior, con aparcamiento cubierto para dos vehículos y un ascensor que comunica toda la casa. En esta planta se encuentra la "zona de noche", compuesta por dos dormitorios, una suite con baño, vestidor y terraza privada y un baño compartido. Todos los dormitorios tienen acceso a una terraza desde donde se puede disfrutar de una de las mejores vistas al mar de la Costa Blanca. Despertarse viendo salir el sol en el horizonte del Mediterráneo es uno de los muchos lujos que le ofrece esta villa. En la planta baja encontramos la zona de estar, donde los amplios espacios abiertos y la luz natural son los principales atractivos, y donde la frontera entre el interior y el exterior se funden gracias a sus grandes paredes acristaladas que permiten el acceso al jardín y a la zona de la piscina. Su cocina equipada con modernos electrodomésticos de primeras marcas, cuenta con una isla central, así como con una amplia zona de bancada que le proporciona mucho espacio de almacenaje. La zona exterior cuenta con un área cubierta donde podrá celebrar los mejores eventos sociales protegido del sol. El sótano de este chalet nos permite convertirlo en un 4 dormitorios, o personalizar este espacio como usted prefiera (gimnasio, una zona de oficina, una sala de juegos...). Villa dispone de calefacción por suelo radiante, así como aire acondicionado frío/calor, sistema domótico, ECODAN... El residencial cuenta con supermercado propio, bares y restaurantes, zonas deportivas e incluso servicio de fibra óptica, lo que hace de Cumbre del Sol un lugar ideal para trabajar desde casa. Todas estas características hacen de Villa una opción perfecta para disfrutar con amigos y familia durante largas temporadas o incluso como vivienda habitual.
La información proporcionada aquí está sujeta a errores y no forma parte de ningún contrato. La oferta puede modificarse o retirarse sin previo aviso. Los precios no incluyen los costes de compra.
*El ahorro propio no puede ser inferior al 30%.