Construidos
106m2Habitaciones
3Baños
2Piscina
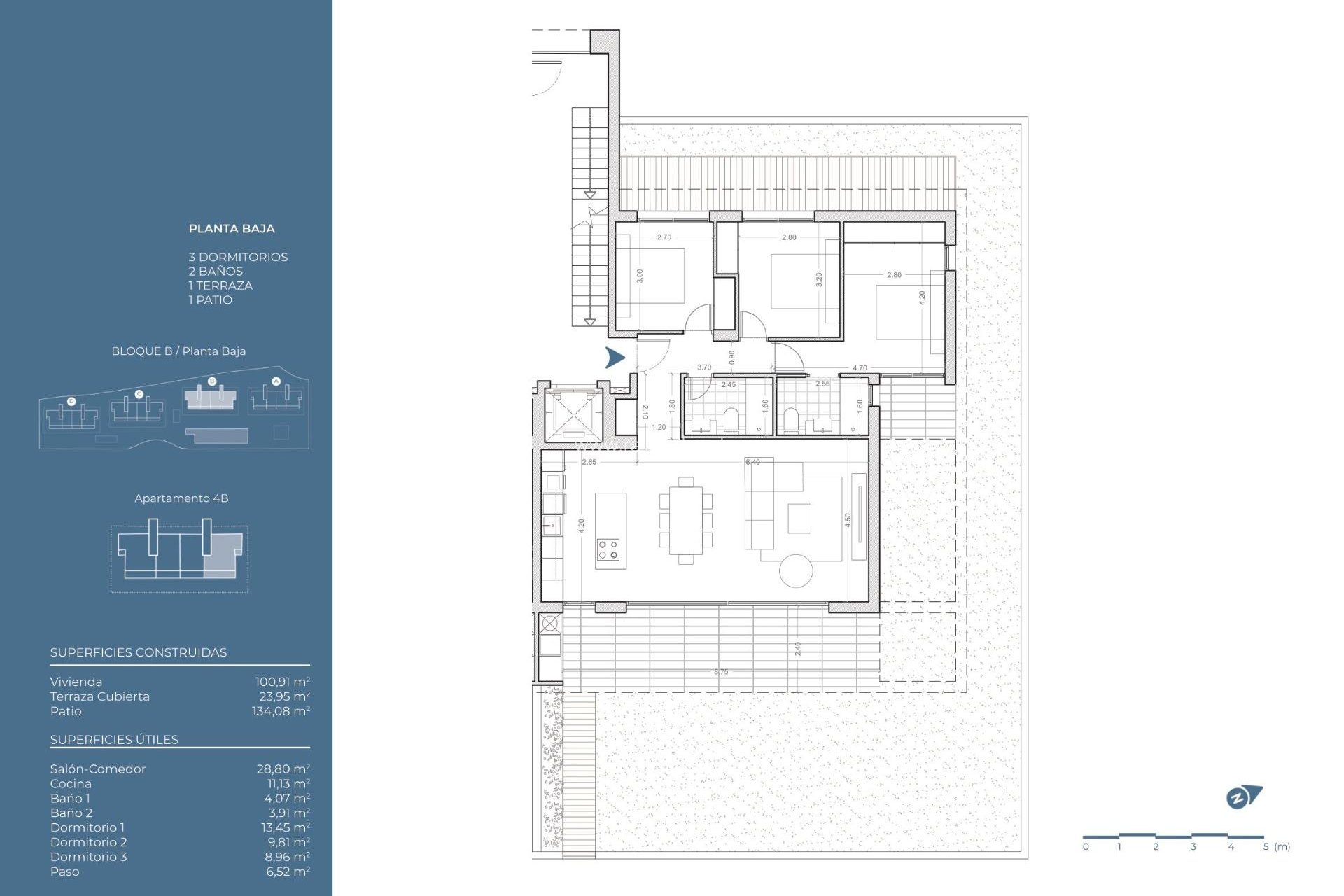
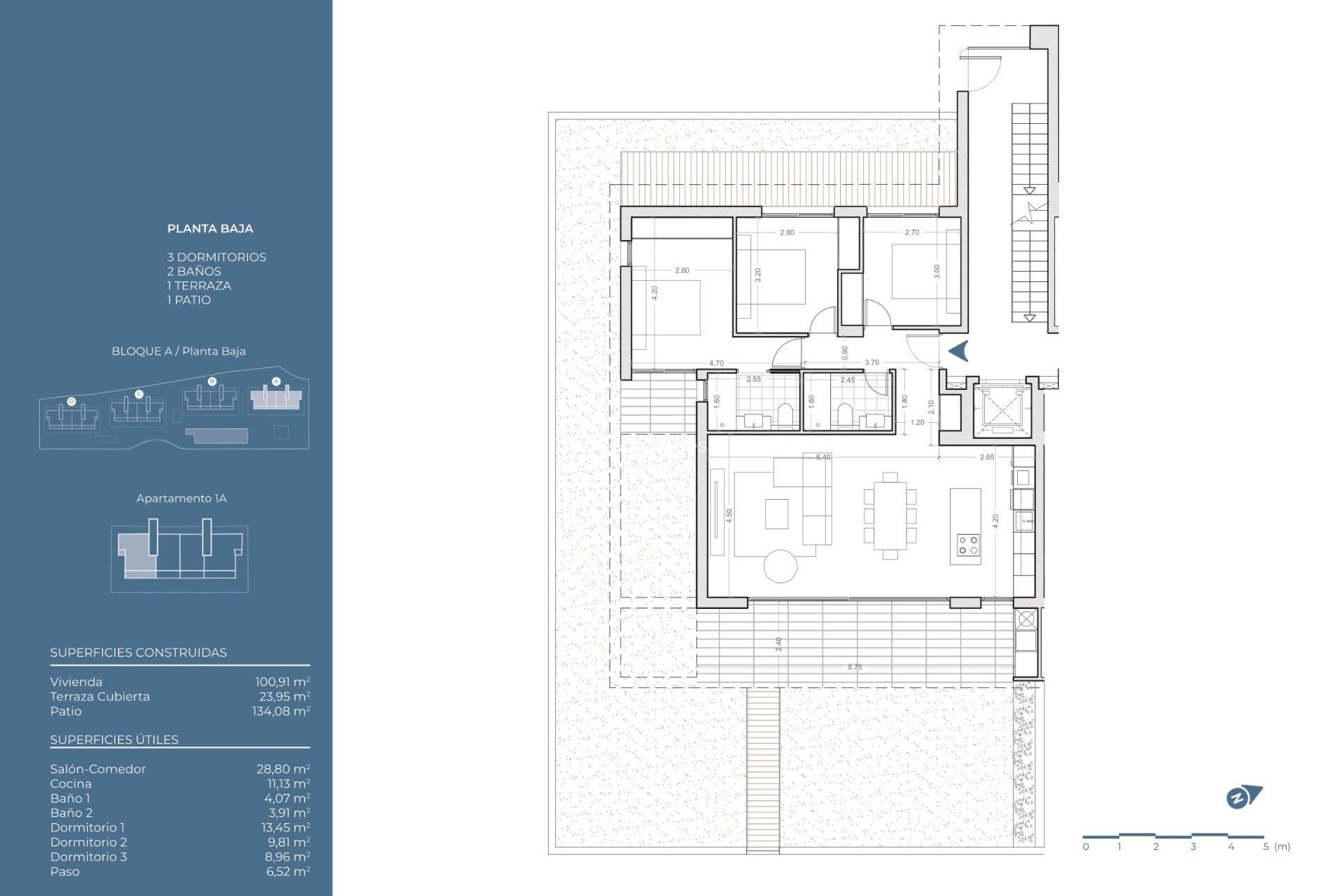
SíCOMPLEJO RESIDENCIAL DE OBRA NUEVA EN LA NUCIA Complejo residencial de obra nueva de apartamentos y áticos con piscina comunitaria exterior, parking, trastero, ascensor, gimnasio, spa comunitario con piscina cubierta climatizada, sauna, jacuzzi en La Nucia. Viviendas modernas de 2 y 3 dormitorios, todas con 2 baños, cocina americana con amplio salón, armarios empotrados, terraza, plaza de garaje subterráneo. Los áticos disponen de solarium privado. Los apartamentos de 3 dormitorios de la planta baja disponen de jacuzzi privado. Excelencia en su arquitectura vanguardista, exquisitos acabados y servicios de alta gama, una urbanización de ensueño para quienes buscan el máximo nivel de confort y distinción. Interiores que combinan elegante diseño y moderna sofisticación, crean espacios que convierten cada día en una excepcional experiencia de confort y bienestar. Cocina de diseño alemán, Burger o similar, con encimera de Silestone, totalmente equipada. Electrodomésticos Siemens o similar. Placa de inducción, campana extractora, horno y frigorífico y lavavajillas integrados en los muebles. Puerta de acceso a la vivienda blindada con cerradura de seguridad acabada con cuarterones lacados a juego con la carpintería interior. Opción de instalar cerradura con mando a distancia desde smartphone o tablet. Armarios modulares con puertas batientes o correderas lacadas a juego con el resto de la carpintería, incluyendo maletero, cajonera y barra de colgar. La vivienda estará preparada para poder contratar internet de alta velocidad. Habrá suelo radiante eléctrico de bajo consumo en los baños. El video portero será electrónico con imagen en color y dispondrá de mando a distancia integrado desde teléfono o tablet. Aire acondicionado Samsung. Cada habitación tendrá su propia máquina interior y control independiente. El aire acondicionado tendrá mando a distancia. Se podrá controlar desde teléfono o tablet. Se realizará la instalación completa del Sistema de Aire Acondicionado, dotado de bomba de calor para proporcionar tanto refrigeración como calefacción. También se utilizarán conductos de fibra de vidrio. Las unidades interiores se ubicarán en el falso techo de la zona de baños y pasillo, mientras que la unidad exterior se instalará en la zona asignada en el proyecto. Ventilación. Instalación de renovación de aire interior en viviendas con tomas de extracción en baños y cocina y reloj para programación horaria. Piscina de uso comunitario con cloración salina y control automático de PH y cloro. En el sótano habrá gimnasio, piscina cubierta climatizada, jacuzzi, sauna, baño de vapor, cromoterapia y vestuarios con baños. Amplias zonas de terrazas y jardines con plantas autóctonas para usos múltiples en la zona comunitaria. El perímetro de la parcela se plantará con plantas que crearán un ambiente privado en el recinto a medida que crezcan. Habrá un sistema de videovigilancia para las zonas comunes. Situado en una ubicación privilegiada, entre Nucia y Altea este residencial goza de un entorno excepcional y excelentes servicios dentro de la urbanización.
La información proporcionada aquí está sujeta a errores y no forma parte de ningún contrato. La oferta puede modificarse o retirarse sin previo aviso. Los precios no incluyen los costes de compra.
*El ahorro propio no puede ser inferior al 30%.