Woonoppervlakte
78m2Slaapkamers
2Badkamers
2Zwembad
JaNieuwbouw wooncomplex in Los Balcones, Torrevieja
Moderne woningen op een bevoorrechte locatie
Dit exclusieve nieuwbouwproject in Los Balcones, Torrevieja bestaat uit 20 moderne bungalows, perfect ontworpen voor comfort en stijl. Gelegen op slechts 4 km van de stranden van Torrevieja en dicht bij winkels, restaurants en essentiële voorzieningen, biedt dit project een ideale omgeving voor zowel permanent wonen als vakantieverblijven aan de Costa Blanca.
Los Balcones is een van de meest gewilde woonwijken van Torrevieja en biedt een rustige sfeer, terwijl het slechts een klein eindje rijden is naar het bruisende stadscentrum. In de omgeving vindt u supermarkten, lokale voorzieningen en het openbare ziekenhuis, met regelmatige busverbindingen naar de stad.
Indelingen die bij uw levensstijl passen
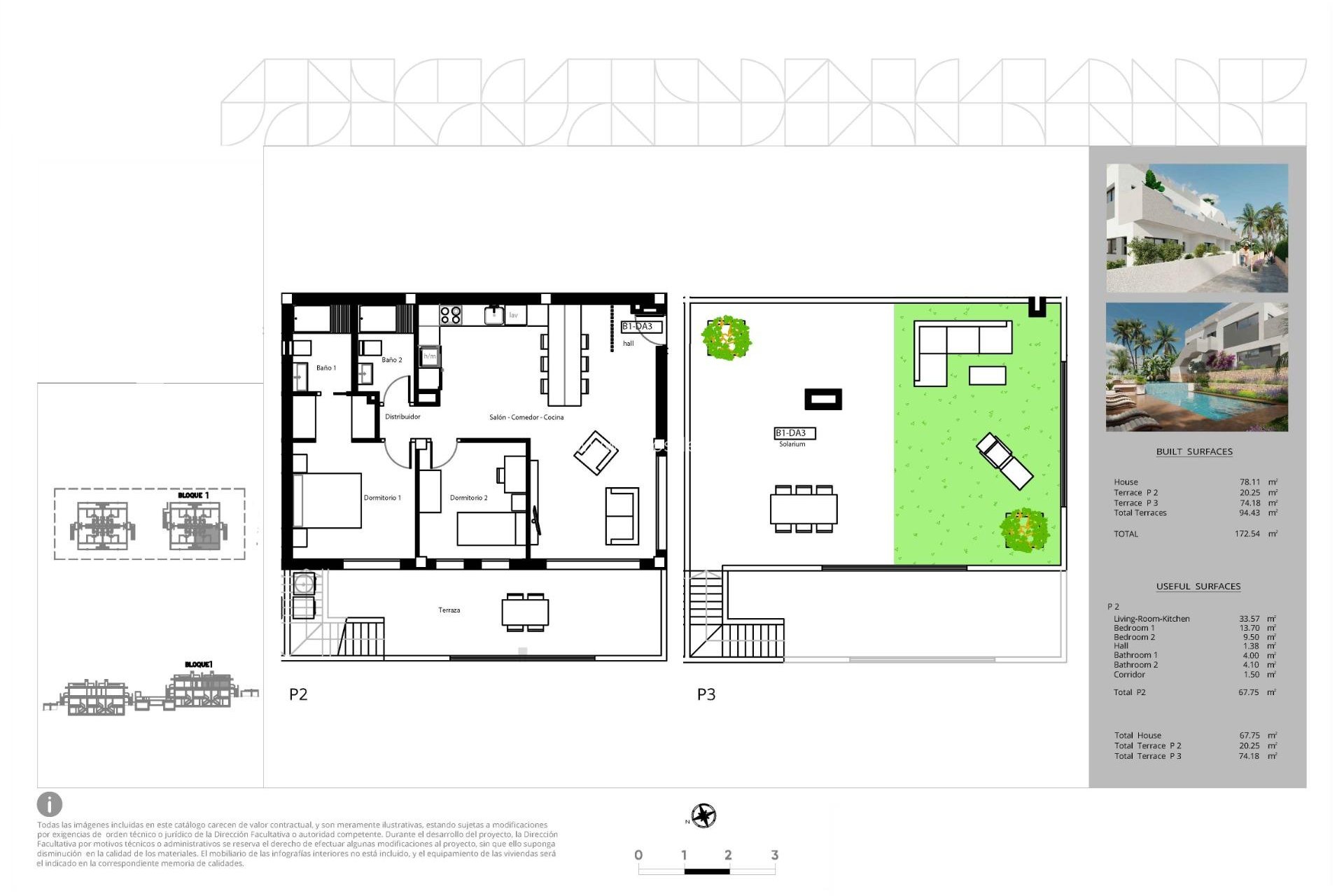
Bungalows op de begane grond: 3 slaapkamers en 3 badkamers, waaronder een hoofdslaapkamer met ensuite op de begane grond, open woonkamer met keuken, gastentoilet en ruim terras. Een trap leidt naar het souterrain met 2 extra slaapkamers, 2 badkamers, wasruimte en patio.
Bungalows op de bovenste verdieping: 2 slaapkamers, 2 badkamers, open keuken met grote woonkamer, terras en privé-solarium, perfect om te genieten van de mediterrane zon.
Alle woningen hebben een eigen parkeerplaats.
Hoogwaardige afwerking en comfortabele voorzieningen
Elke bungalow is ontworpen met de beste specificaties om maximaal comfort te garanderen:
Gepantserde voordeur en gemotoriseerde aluminium rolluiken
Dubbele beglazing met zonwering
Volledig geïnstalleerde airconditioning
Aerothermisch warmwatersysteem
Ingerichte keuken met apparatuur
LED-verlichting binnen en buiten
Badkamers met meubilair, spiegels en doucheschermen
Alarmsysteem met detectoren en centrale eenheid
Exclusieve gemeenschappelijke voorzieningen
Het wooncomplex beschikt over prachtige aangelegde tuinen, een gemeenschappelijk zwembad met twee niveaus en een volledig uitgeruste fitnessruimte, waardoor het de perfecte omgeving is om te ontspannen en te socializen.
Uitstekende verbindingen aan de Costa Blanca
Het project heeft uitstekende vervoersverbindingen:
Stranden: 4 km
Luchthaven Alicante: 55 km (40 minuten)
Luchthaven Murcia: 65 km (1 uur)
Golfbaan Villamartín: 9 km
Jachthaven Torrevieja: 5 km
Uw nieuwe huis in Torrevieja wacht op u
Met zijn moderne ontwerp, hoogwaardige afwerking en bevoorrechte ligging is dit wooncomplex in Los Balcones de perfecte keuze voor een nieuw leven aan de Middellandse Zee.
Neem vandaag nog contact met ons op om een bezichtiging te regelen en uw droomhuis in Torrevieja te bemachtigen.
De hierin verstrekte informatie is onder voorbehoud van fouten en maakt geen deel uit van een contract. Het aanbod kan zonder voorafgaande kennisgeving worden gewijzigd of ingetrokken. Prijzen zijn exclusief aankoopkosten.
*Maximaal 70% van de aankoop-/taxatiewaarde mag gefinancierd worden middels hypotheek. De overige 30% van de aankoopwaarde plus belastingen en andere bijkomende kosten kunnen niet gefinancierd worden.