Woonoppervlakte
468m2perceel
1.000m2Slaapkamers
4Badkamers
4Zwembad
JaModerne nieuwbouwwoning met luxe voorzieningen in Javea
Eigentijds mediterraan wonen aan de Costa Blanca
Deze prachtige vrijstaande nieuwbouwwoning in Javea combineert hoogwaardige afwerking, elegant design en optimale functionaliteit over drie ruime verdiepingen. Gelegen in een van de meest gewilde kustplaatsen aan de Costa Blanca Noord, biedt het pand een rustige woonomgeving, omgeven door groene bergen, natuurparken en prachtige stranden. Javea staat bekend om zijn kristalheldere water, traditionele gastronomie en mediterrane levensstijl, waardoor het een ideale locatie is voor zowel permanent wonen als investeren.
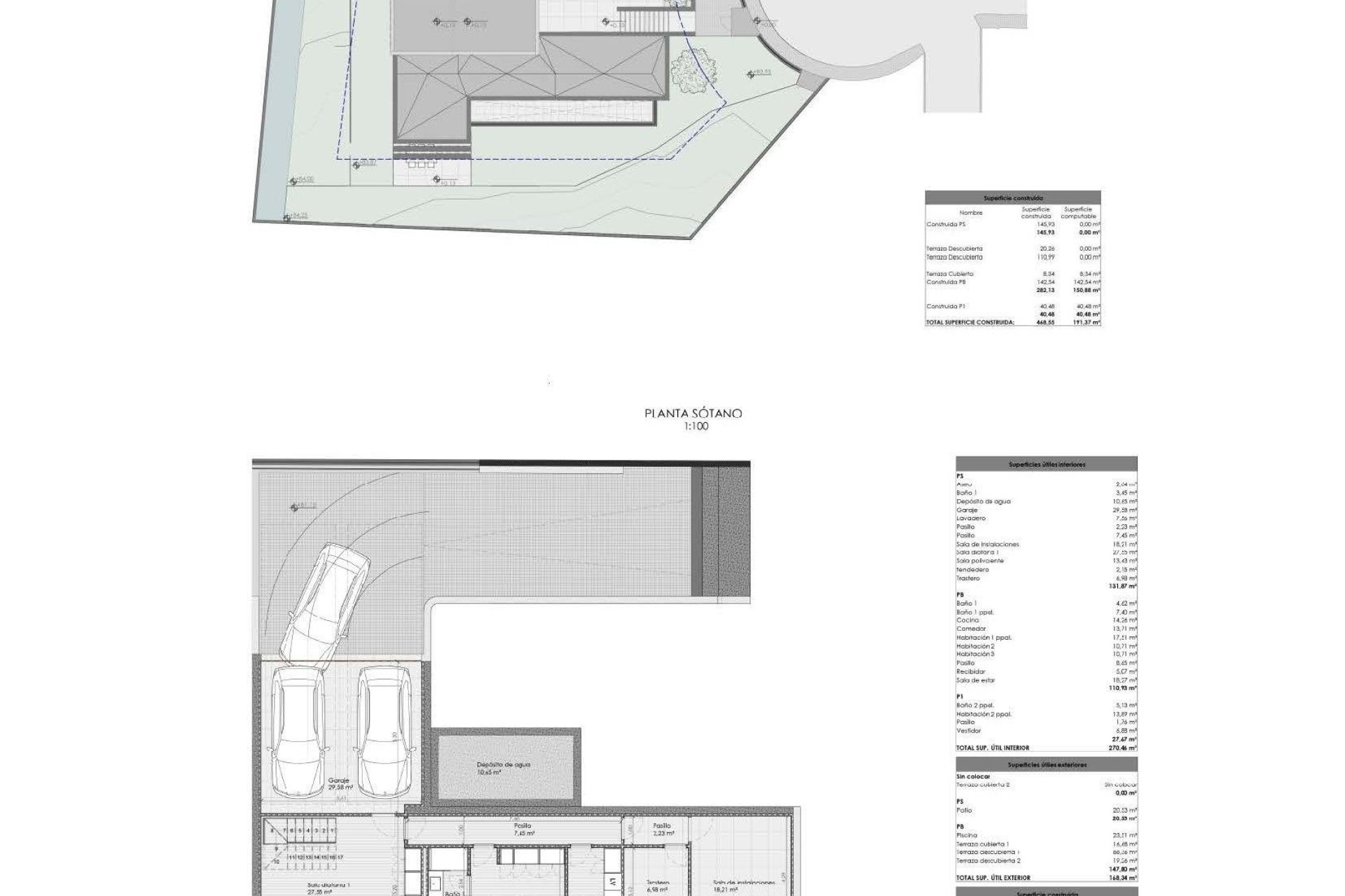
Ruime kelder ontworpen voor veelzijdigheid
De kelderverdieping is zorgvuldig ontworpen om aan de behoeften van de moderne levensstijl te voldoen. Het omvat een open garage voor twee auto's, een badkamer, een gastentoilet, een open conceptruimte, een multifunctionele ruimte en een patio die natuurlijk licht in de ruimte brengt. Deze verdieping biedt eindeloze mogelijkheden, of u nu een fitnessruimte, entertainmentruimte, kantoor of gastensuite voor ogen heeft.
Elegante begane grond met aaneengesloten leefruimtes
De begane grond beschikt over een lichte woon-eetkamer die naadloos aansluit op de volledig uitgeruste keuken, waardoor een perfecte ruimte ontstaat voor familiebijeenkomsten. Een entreehal, gastentoilet en gangen zorgen voor extra functionaliteit en een goede doorstroming. Deze verdieping omvat twee comfortabele slaapkamers die een moderne badkamer delen en een royale hoofdslaapkamer met een en suite badkamer, die privacy en comfort biedt.
Luxe master suite op de bovenverdieping
De bovenverdieping is gewijd aan een tweede hoofdslaapkamer, die een exclusief toevluchtsoord biedt met een eigen badkamer, kleedkamer en gang. Deze privéruimte garandeert comfort en rust met een prachtig uitzicht op het omringende groene landschap.
Buitenleven ontworpen voor het mediterrane klimaat
De buitenruimtes van het pand zijn ontworpen om het hele jaar door van het buitenleven te genieten. Het beschikt over twee overdekte terrassen en twee onoverdekte terrassen op de begane grond. Een van de overdekte terrassen omringt het zwembad, perfect om in de zomer te ontspannen, terwijl het onoverdekte terras naast de keuken ideaal is om buiten te eten en samen te komen.
De villa is uitgerust met vloerverwarming en airconditioning en garandeert comfort in elk seizoen.
Toplocatie in Javea
Strand El Arenal 3 km
Haven en jachthaven van Javea 7 km
Golfclub Javea 3 km
Luchthaven Alicante 100 km
Luchthaven Valencia 125 km
Uw mediterrane thuis wacht op u
Of u nu op zoek bent naar een luxe woning, een vakantiehuis of een veilige langetermijninvestering, deze villa biedt een uitzonderlijke levensstijl in Javea. Neem vandaag nog contact met ons op om een bezichtiging te regelen en uw toekomstige thuis aan de Costa Blanca te ontdekken.
De hierin verstrekte informatie is onder voorbehoud van fouten en maakt geen deel uit van een contract. Het aanbod kan zonder voorafgaande kennisgeving worden gewijzigd of ingetrokken. Prijzen zijn exclusief aankoopkosten.
*Maximaal 70% van de aankoop-/taxatiewaarde mag gefinancierd worden middels hypotheek. De overige 30% van de aankoopwaarde plus belastingen en andere bijkomende kosten kunnen niet gefinancierd worden.