Gebaut
145m2Grundstück
240m2Schlafzimmer
3Das Badezimmer
2Schwimmbad
JaSchlüsselfertige Neubau-Villa mit privatem Pool, nur 500 m vom Strand in San Pedro del Pinatar entfernt
Exklusiver Neubau in erstklassiger Lage an der Costa Cálida
Entdecken Sie diese außergewöhnliche Neubauvilla in San Pedro del Pinatar, nur 500 Meter von den Sandstränden von Villananitos entfernt. Diese schlüsselfertige Immobilie bietet eine perfekte Mischung aus modernem Design, luxuriöser Ausstattung und einer unschlagbaren Lage an der begehrten Costa Cálida in Spanien. Ob Sie ein Ferienhaus, einen ganzjährigen Wohnsitz oder eine renditestarke Investition suchen, diese Villa lässt keine Wünsche offen.
Großzügiger Grundriss mit moderner Eleganz
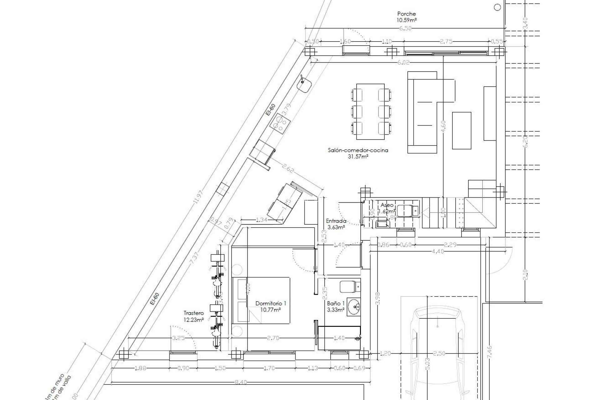
Auf einem 240 m² großen Grundstück bietet diese Villa eine bebaute Fläche von 145 m², die sich auf zwei Ebenen verteilt. Sie umfasst:
Drei geräumige Schlafzimmer, eines davon im Erdgeschoss mit eigenem Bad
Zwei Badezimmer mit begehbaren Duschen und hochwertigen Materialien
Ein Gäste-WC im Erdgeschoss
Offene Küche mit hochwertigen Bosch-Geräten
Großes und helles Wohnzimmer mit direktem Blick auf die Poolterrasse
Vier Terrassen, ideal für das Leben im Freien und zur Unterhaltung
Jeder Raum ist auf Komfort, Eleganz und Funktionalität ausgelegt und verfügt über eine hervorragende Isolierung und eine Klimaanlage für eine ganzjährige Klimatisierung.
Privater Pool und Leben im Freien
Genießen Sie das mediterrane Leben in vollen Zügen mit Ihrem eigenen privaten Swimmingpool, einer Außendusche und mehreren Terrassen zum Sonnenbaden, Lesen oder Essen im Freien. Die moderne Außenbeleuchtung unterstreicht das Ambiente und sorgt für entspannte Abende unter dem Sternenhimmel.
Auf dem Grundstück gibt es außerdem einen privaten Parkplatz und einen großen Hauswirtschaftsraum mit Anschlüssen für eine Waschmaschine, einen Trockner und ein energieeffizientes aerothermisches System für Warmwasser.
Strategische Lage an der Küste
Das Projekt befindet sich in San Pedro del Pinatar, einer charmanten Stadt, die für ihre authentische spanische Atmosphäre und ihre moderne Infrastruktur bekannt ist:
Strand Villananitos – 0,5 km
Einkaufszentrum Dos Mares – 3 km
Golfplatz Roda – 7 km
Yachthafen Lo Pagán – 1,5 km
Stadtzentrum Murcia – 47 km
Cartagena – 34 km
Diese privilegierte Lage bietet einfachen Zugang zu Stränden, Golfplätzen, Einkaufsmöglichkeiten, Restaurants und wichtigen Verkehrsverbindungen und ist somit ideal für Freizeit und Alltag.
Verpassen Sie diese schlüsselfertige Gelegenheit nicht
Wenn Sie von einem stilvollen, bezugsfertigen Haus in Meeresnähe träumen, ist diese Villa in San Pedro del Pinatar die perfekte Wahl.
Kontaktieren Sie uns noch heute, um einen Besichtigungstermin zu vereinbaren oder weitere Informationen anzufordern.
Die hier bereitgestellten Informationen sind vorbehaltlich von Irrtümern und stellen keinen Vertragsbestandteil dar. Das Angebot kann ohne Vorankündigung geändert oder zurückgezogen werden. Die Preise beinhalten keine Einkaufskosten.
*Maximal 70 % des Kauf-/Schätzwerts können über eine Hypothek finanziert werden. Die restlichen 30 % des Kaufwertes zuzüglich Steuern und sonstiger Nebenkosten können nicht finanziert werden.