Construidos
145m2Parcela
240m2Habitaciones
3Baños
2Piscina
SíVilla nueva a estrenar con piscina privada a solo 500 metros de la playa en San Pedro del Pinatar
Exclusiva nueva construcción en una ubicación privilegiada de la Costa Cálida
Descubra esta excepcional villa de nueva construcción en San Pedro del Pinatar, a solo 500 metros de las playas de Villananitos. Esta propiedad lista para entrar a vivir ofrece una combinación perfecta de diseño moderno, acabados de lujo y una ubicación inmejorable en la codiciada Costa Cálida española. Tanto si busca una casa de vacaciones, una residencia para todo el año o una inversión de alto rendimiento, esta villa cumple con todas las expectativas.
Amplia distribución con elegancia moderna
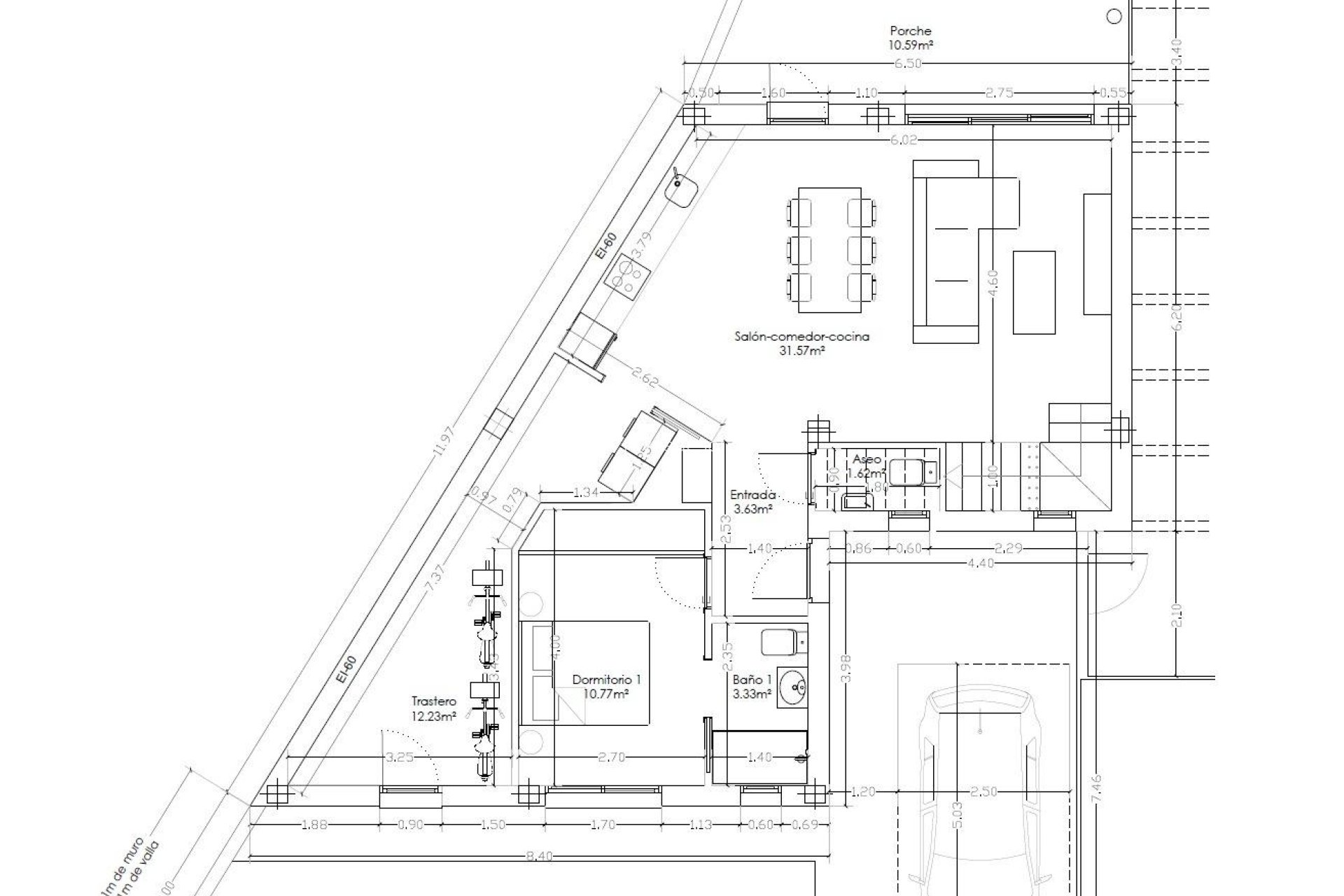
Situada en una parcela de 240 m², esta villa ofrece una superficie construida de 145 m² distribuidos en dos niveles. Incluye:
Tres amplios dormitorios, uno de ellos en la planta baja con baño en suite
Dos baños completos con duchas a ras de suelo y materiales de primera calidad
Un aseo de invitados en la planta baja
Cocina abierta con electrodomésticos Bosch de alta gama
Amplio y luminoso salón con vistas directas a la terraza de la piscina
Cuatro terrazas ideales para disfrutar del aire libre y recibir invitados
Cada espacio está diseñado para ofrecer comodidad, elegancia y funcionalidad, con un excelente aislamiento y aire acondicionado por conductos para controlar la temperatura durante todo el año.
Piscina privada y vida al aire libre
Disfrute al máximo de la vida mediterránea con su propia piscina privada, ducha exterior y múltiples terrazas para tomar el sol, leer o cenar al aire libre. La moderna iluminación exterior realza el ambiente, haciéndolo perfecto para relajarse por las noches bajo las estrellas.
También hay aparcamiento privado dentro de la parcela y un gran lavadero interior con conexiones para lavadora, secadora y un sistema aerotérmico de bajo consumo para el agua caliente.
Ubicación estratégica en la costa
Situada en San Pedro del Pinatar, una encantadora localidad conocida por su auténtico ambiente español y sus modernas comodidades:
Playa Villananitos - 0,5 km
Centro comercial Dos Mares - 3 km
Campo de golf de Roda - 7 km
Puerto deportivo de Lo Pagán - 1,5 km
Centro de Murcia - 47 km
Cartagena: 34 km
Esta privilegiada ubicación ofrece fácil acceso a playas, campos de golf, tiendas, restaurantes y principales medios de transporte, lo que la hace ideal tanto para el ocio como para la vida cotidiana.
No se pierda esta oportunidad única
Si sueña con una casa elegante y lista para entrar a vivir cerca del mar, esta villa en San Pedro del Pinatar es la elección perfecta.
Póngase en contacto con nosotros hoy mismo para concertar una visita o solicitar más información.
La información proporcionada aquí está sujeta a errores y no forma parte de ningún contrato. La oferta puede modificarse o retirarse sin previo aviso. Los precios no incluyen los costes de compra.
*El ahorro propio no puede ser inferior al 30%.