Built
106m2Bedrooms
3Bathrooms
2Pool
YesNEW BUILD RESIDENTIAL COMPLEX IN LA NUCIA
New Build residential complex of apartments and penthouses with outdoor communal pool, parking, storage room, lift, gym, communal spa with indoor heated pool, sauna, jacuzzi in La Nucia.
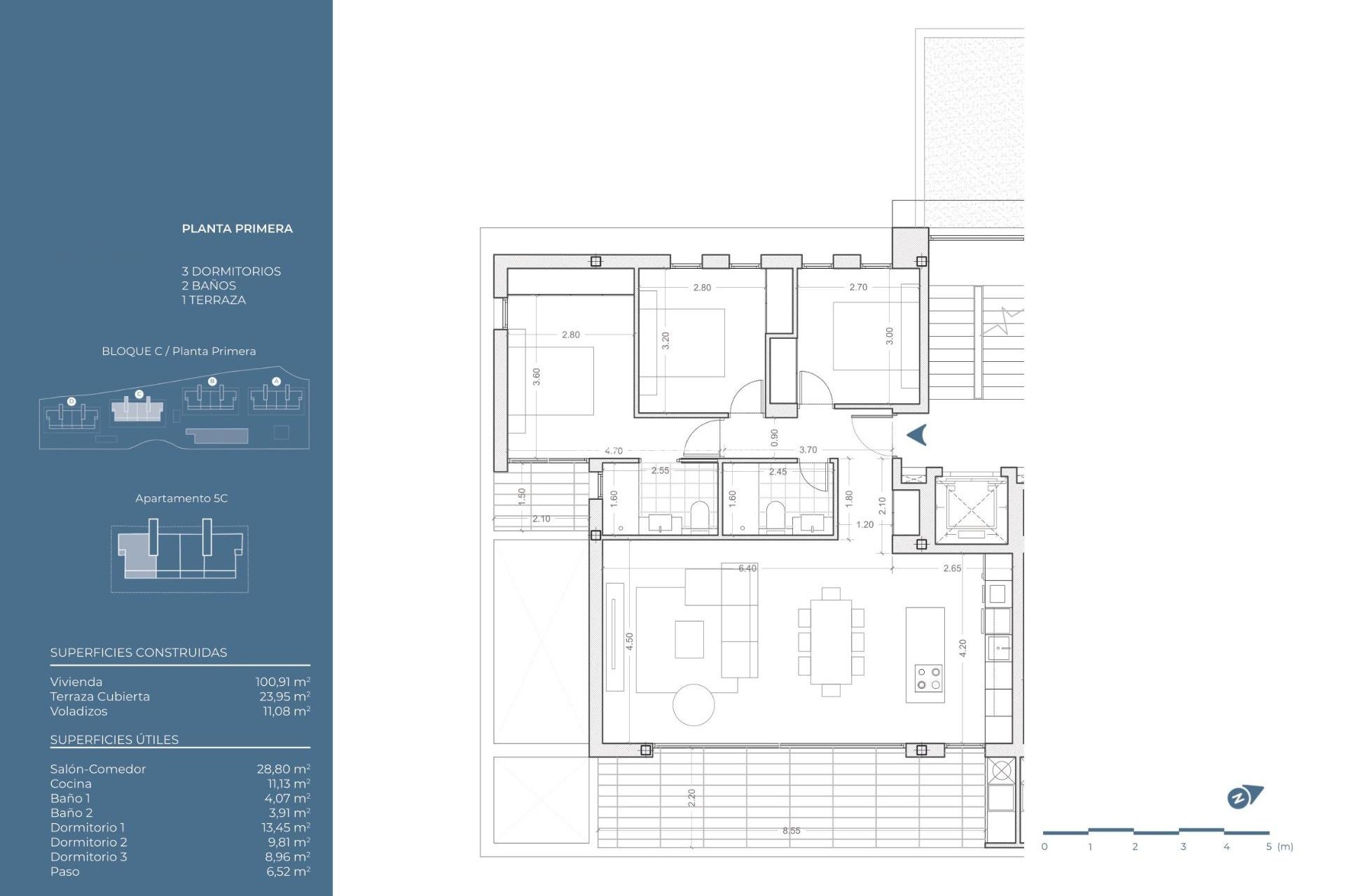
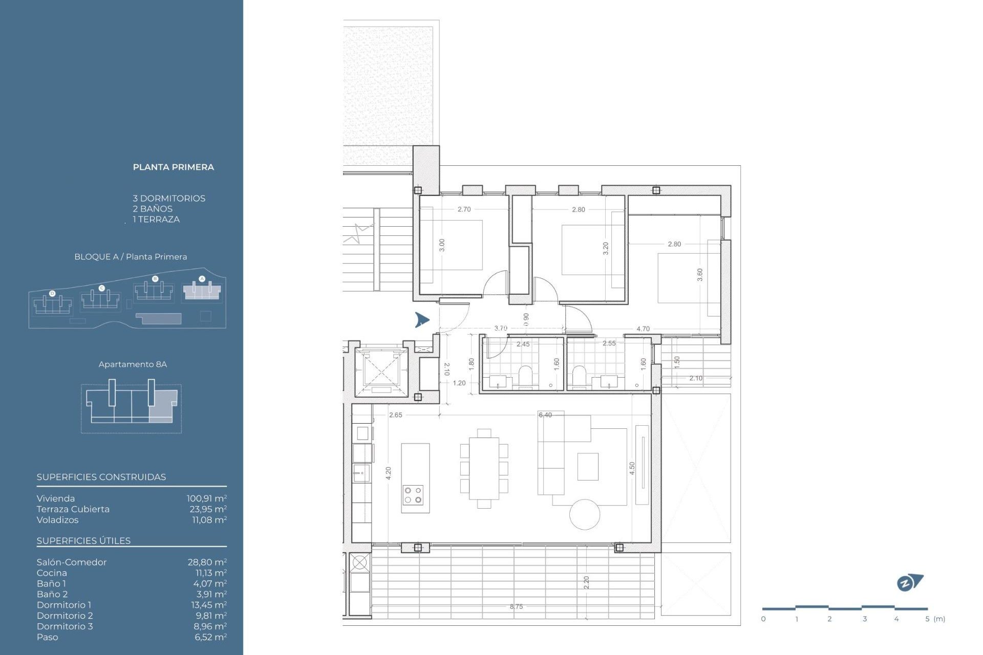
Modern properties with 2 and 3 bedrooms, all with 2 bathrooms, open plan kitchen with spacious living room, fitted wardrobes, terrace, underground parking space.
Penthouses has private solariums.
Excellence in its avant-garde architecture, exquisite finishes and high-end services, a dream urbanization for those looking for the highest level of comfort and distinction.
Interiors that combine elegant design and modern sophistication, create spaces that turn every day into an exceptional experience of comfort and well-being.
German designer kitchen, Burger or similar, with Silestone worktop, fully equipped. Siemens appliances or similar. Induction hob, extractor fan, oven and fridge and dishwasher integrated in the units.
Reinforced access door to the property with security lock finished with lacquered panelling to match the interior carpentry. Option to fit lock with remote control from smartphone or tablet.
Modular wardrobes with hinged or sliding doors lacquered to match the rest of the carpentry, including boot, drawers and hanging rail.
The property will be prepared to be able to contract high speed internet.
There will be low consumption electric underfloor heating in the bathrooms.
The video intercom will be electronic with colour image and will have integrated remote control from telephone or tablet.
Samsung air conditioning. Each room will have its own interior machine and independent control. The air conditioning will have remote control. It can be controlled from a telephone or tablet.
The complete installation of the Air Conditioning System will be carried out, equipped with a heat pump to provide both cooling and heating. Ducts made of fibreglass will also be used.
The indoor units will be located in the false ceiling in the bathrooms and corridor area, while the outdoor unit will be installed in the area assigned in the project. Ventilation. Installation of interior air renewal in dwellings with extraction outlets in bathrooms and kitchen and clock for programming the timetable.
Swimming pool for community use with saline chlorination and automatic control of PH and chlorine.
In the basement there will be a gymnasium, indoor heated pool, jacuzzi, sauna, steam bath, chromotherapy and changing rooms with bathrooms.
Large terrace areas and gardens with indigenous plants for multiple uses in the communal area.
The perimeter of the plot will be planted with plants that will create a private atmosphere in the enclosure as they grow.
There will be a video surveillance system for the communal areas.
Located in a privileged location, between Nucia and Altea this residencial enjoys an exceptional environment and excellent services within the urbanization.
The information provided herein is subject to errors and does not form part of any contract. The offer may be changed or withdrawn without notice. Prices do not include purchase costs and taxes.
*Maximum mortgage is 70% of the purchase-/valuation value. The remaining 30% of the purchase price plus taxes and other additional costs can not be financed.